- Alle projecten
- gerealiseerd
- in uitvoering
- in voorbereiding
- overig
Wie meer wil weten over de actualiteit van klassieke ontwerpen of altijd al het idee had om daar eens flink aan door te werken, kan komende jaren zomers meedoen aan de Engelsberg Summer School for Classical Architecture in Zweden, ESSCA. Op een …
De Alliance Française wil haar rol in het Haagse Hofkwartier versterken. Een buurt waar de Franse cultuur tot op de dag van vandaag aanwezig is. De boekencollectie wordt vernieuwd, opengesteld en meer toegesneden op de bezoekers die geïnteresseerd …
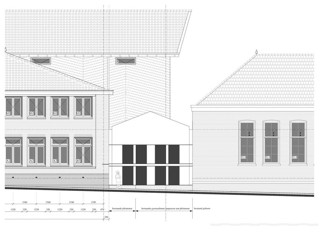
Sinds begin jaren ’30 van de vorige eeuw is het pand Nassauplein 29 in gebruik bij de kerkgemeente Des Heren Nieuwe Kerk en het Swedenborg genootschap. Voor de bibliotheek wordt een ruimte op de begane grond aangebouwd op de plaats van de huidige …
Aan de Burgemeester Stramanweg in Ouder Amstel zijn 34 woningen gebouwd in opdracht van Woningbouwvereniging Eigen Haard. Scala won de meervoudige selectie in 2012. Op deze plaats bevond zich een ouder project met sociale woningbouw. De wetgeving …
Nadat de Insigne-fabriek is uitgeplaatst naar het bedrijventerrein van Oud-Alblas is de locatie herontwikkeld als woongebied. Langs de Dorpsstraat verschenen appartementen, terzijde eengezinswoningen in een rij en (half-)vrijstaande woningen.
Lange tijd was er onduidelijkheid tussen gemeente en corporatie over de herontwikkeling van Korte Akkeren. Mediation door Peter Noordanus met een plan van SCALA leverde overeenstemming op over de herontwikkeling van deze rand van de binnenstad. Het …
Voor een competitie is een plan gemaakt voor een landgoed bij Rotterdam. Gekozen is voor een U-vormig ensemble van appartementengebouwen rond een vijver tegen een helling waarop een tuinkoepel is een ontworpen. In de tuinkoepel keuken en sanitair, …
In de panden aan Oude Molstraat en Annastraat was meer dan 150 jaar lang Koninklijke Drukkerij de Swart gevestigd. In de loop van de tijd groeide het bedrijf met het formaat van de drukpersen mee en dus werden naastliggende panden verworven. Inwendig …
De Marechaussee kazerne aan de Laan van Meedervoort is opgeheven: de woonfunctie is er teruggebracht. De herenhuizen zin gerestaureerd, een nieuw appartementengebouw is in de rooilijn gebouwd en op het binnenterrein zijn bergingen, parkeerplaatsen en …
Het voormalige sanatorium van de Sophiastichting was lange tijd in gebruik bij de PTT (nu KPN) als hoofdkantoor telefonie. Het gebouw stond geruime tijd leeg en een plan werd ontwikkeld om het te verbouwen tot appartementen met eengezinswoningen op …
Een van de kantorenlocaties in Hanzeland, Zwolle wordt ontwikkeld door Eurocommerce naar ontwerp van Scala. Het stedenbouwkundig plan voorzag aanvankelijk in een groot bouwvolume. Scala heeft voorgesteld het volume in meerdere delen op te splitsen en …
Het plan maakt deel uit van een omvangrijk reconstructiegebied direct aansluitend op het spooremplacement van station Zwolle. De locatie wordt ontwikkeld tot binnenstedelijk gelegen concentratie van woningen en kantoren. Het stedenbouwkundig plan …



































































































































































































