Spring naar content
Scala architecten
ontwerpen met oog voor het verleden en vertrouwen in de toekomst
Scala architectenScala architecten
  • Home
  • Projecten
  • Kaart
  • Het bureau
  • Publicaties
    • Columns
    • Artikelen
    • Over Scala
    • Boeken
  • Contact
Zoeken:
  • Home
  • Projecten
  • Kaart
  • Het bureau
  • Publicaties
    • Columns
    • Artikelen
    • Over Scala
    • Boeken
  • Contact

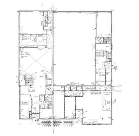
MFC De Bras

Oeverwallaan 130 Ypenburg Den Haag

Multifunctioneel centrum ‘De Bras’ is de combinatie van een buurt- en jongerenhuis en een sportzaal van de naastgelegen school. Het gebouw is ongeveer 1200 M2 groot en heeft op de begane grond een ontmoetingsruimte/bar en een aparte ontmoetingsruimte voor jongeren

2013-08/IMG_3523.JPG
2013-10/340 W plattegronden 06011.JPG
2013-10/IMG_3533.jpg
2013-10/pd0810288966.jpg
2013-10/IMG_9012.jpg
2013-10/pd0804112981.jpg
2013-10/340 plattegronden040526.jpg
2013-10/pd0804112982.jpg
2013-10/pd0810288979.jpg
2013-10/IMG_9513.jpg
2013-10/IMG_4305.jpg
2013-10/IMG_3525.jpg
2013-10/IMG_7199.jpg
2013-10/IMG_7204.jpg
2013-10/brasz.jpg
Laad meer

Project navigation

VorigePrevious project:Masterplan Korte Akkeren, Appartementen Wachtelstraat GoudaVolgendeNext project:Woningen Mortiere Middelburg
Ontwerp: ed van den heuvel / webdesign

2026 Copyright Scala Architecten

Terug naar boven