Uitbreiding woonhuis Belgisch Park
Den Haag
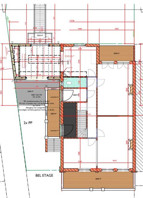
Het rijksmonument Antwerpsestraat bestaat uit drie herenhuizen die na de oorlog zijn gesplitst. Voor nummer 6 werd een aanbouw ontworpen die op de fundering staat van de stal met koetshuis die eind 19e eeuw naast het huis werd gebouwd.
Legenda
- ontwerp: SCALA 2019
- constructeur: Adviesburo Broersma, Den Haag
- uitvoering: Steven Kolthof 2020







